

Предохранительные клапана
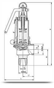
Пружинный предохранительный клапан Т-31 М с литым корпусом (для котлов ДЕ)
Для обеспечения при открытии клапана минимального выброса пара в окружающее пространство в крышке клапана
выполнено лабиринтное уплотнение, состоящее из чередующихся алюминиевых и паронитовых колец. Настройка
клапана на срабатывание при заданном давлении осуществляется изменением степени затяжки пружины с помощью
нажимной резьбовой втулки . Нажимная втулка закрыта колпаком , закрепленным двумя винтами . Через головки винтов
пропускается контрольная проволочка, концы которой пломбируются. Для проверки действия клапанов в процессе
эксплуатации оборудования на клапане предусмотрен рычаг.
Клапан предохранительный пружинный с демпфером угловой фланцевый
Клапан предохранительный рычажно-грузовой чугунный фланцевый однорычажный
17ч18бр/нж DN 50, 80, 100 PN 16 (для котлов ДКВр)
Предназначен для сброса среды при повышении давления сверх допустимого на стационарных паровых и
водогрейных котлах, резервуарах или трубопроводах. Рабочая среда - вода, пар и другие жидкие и
газообразные среды, нейтральные по отношению к серому чугуну температурой от минус 15 до +225°С.
Клапан предохранительный рычажно-грузовой чугунный фланцевый двухрычажный
17с19нж/бр DN 125, 150 PN 16 (для котлов ДКВр)
Предназначен для сброса среды при повышении давления сверх допустимого на стационарных
паровых и водогрейных котлах, резервуарах или трубопроводах. Рабочая среда - вода, пар и другие
жидкие и газообразные среды, нейтральные по отношению к серому чугуну температурой от минус 15 до +225°С.
Клапан предохранительный уф-17б5бк (уф55105) (для котлов серии Е 1.0/0.9)
Клапан предохранительный автоматический латунный предназначен для автоматического
выпуска рабочей среды при превышении давления в котлах серии Е.
Ру16, t=225°C вода, пар, газ;
Детальное описание товара
Клапан предохранительный УФ 55105-025 (17б5бк)
Номинальное давление: PN 1.6МПа.
Номинальный диаметр: Ду25.
Материал корпусных деталей: ЛЦ-40С.
Присоединение клапана 17б5бк к трубопроводу штуцерно-торцевое по ГОСТ 5890-78.
Клапан предохранительный специальный полноподъемный пружинный с рычагом
для контрольной продувки типа СППК4Р-16 (17с6нж
По заводской спецификации клапаны имеют маркировку типа СППК4Р-100-16, где буквенно-цифровое
обозначение означает следующее:
СППК - специальный пружинный предохранительный клапан;
4 - номер модификации клапана;
Р - обозначает наличие рычага ручного дублера (при его отсутствии буква не указывается);
100 - условный проход на входе в мм (Ду);
16 - рабочее давление в кгс/см2 (Ру).
Технические характеристики
| Обозначение изделия |
DN |
PN |
t°C |
L |
H |
Масса |
| Т31МС-1 |
50 |
64 |
до 425 t°C |
130 |
550 |
47,8 |
| Т31МС-2 |
50 |
64 |
до 425 t°C |
130 |
550 |
46,5 |
| Т31МС-3 |
50 |
64 |
до 425 t°C |
130 |
550 |
44,2 |
| |
СППК4Р- 50-16 |
СППК4Р- 80-16 |
СППК4Р- 100-16 |
СППК4Р- 150-16 |
| Регулируемая среда |
природный газ по ГОСТ 5542-87 |
| Температура рабочей среды, °С |
от -40 до +600 |
| Максимальное рабочее давление, МПа |
1,6 |
1,6 |
1,6 |
1,6 |
Пределы регулирования(с использованием сменных комплектов пружин), МПа |
0,05-1,6 |
0,05-1,6 |
0,05-1,6 |
0,05-1,6 |
| Ду присоединительного патрубка, мм |
| входа |
50 |
80 |
100 |
150 |
| выхода |
80 |
100 |
150 |
200 |
| Диаметр седла, мм |
30 |
40 |
48 |
75 |
| Габаритные размеры, мм |
600×210×185 |
690×247×205 |
845×267×280 |
1055×345×315 |
| Масса, кг, не более |
29 |
40 |
53 |
94 |
Авторские права © 2000 - 2018.
ООО «Котлоэнергосервис М.Ю.В.»
проектирование • поставка • монтаж • наладка • поддержка
(067) 502-80-49
(096) 548-94-26
(098) 537-07-18
(04560) 5-54-53